Denah rumah 10x7.
Jika kamu sedang mencari artikel denah rumah 10x7 terlengkap, berarti kamu telah berada di blog yang benar. Yuk langsung aja kita simak penjelasan denah rumah 10x7 berikut ini.
 Trendy House Layout Modern Bedrooms 29 Ideas Floor Plan Layout House Layouts House Design From in.pinterest.com
Trendy House Layout Modern Bedrooms 29 Ideas Floor Plan Layout House Layouts House Design From in.pinterest.com
Rumah yang nyaman selalu dikaitkan dengan rumah. Hallo guysLahan yang semakin terbatas tentu untuk menyematkan beberapa tempat tidur dalam sebuah hunian menjadi hal yang cukup TrickyUntuk keluarga yang l. Denah Desain Rumah 10 x 10 meter sederhana ini sangat cocok kamu jadikan referensi ketika kamu ingin membangun rumah tapi belum menemukan tata letak dan denah yang tepat untuk membangun rumah impian Denah Desain Rumah 10 x 10 meter Sederhana 18. Misalnya dengan konsep dibawah ini.
Dengan konsep diatas anda sudah dapat membuat rumah dengan ukuran 10 x 7 lengkap dengan ruang tamu tempat tidur taman kecil garasi dapur kamr mandi.
Banyak kalangan baik dari desa maupun perkotaan terutama yang berada di kota metropolitan yang udaranya telah mulai panas memilih denah rumah. Gambar denah rumah minimalis kita kali ini adalah denah dengan ukuran lahan lebar 10 meter dengan panjang 16 meter dengan 4 buah kamar tidur dan pada 2 lantai bangunan. Desain Rumah Ukuran 710 Meter Berikut adalah kurang lebih di balik dekorasi ide-ide yang dapat kamu ambil untuk menciptakan ruang baru yang menawan. Explore Kang aguscwids photos on Flickr. Rumah panggung identik dengan citra tradisionalnya yang kental.
 Source: youtube.com
Source: youtube.com
42 Gambar Tampak Depan Rumah Minimalis Lebar 10 Meter - Rumah minimalis sederhana akan ditampilkan tampak depan. Untuk memiliki denah rumah 3 kamar ukuran 6x12 maka Anda bisa mengembangkan desain rumah sederhana 6x12 untuk 1 lantai secara vertikal menjadi 2 lantai. Denah rumah satu ini terbilang cukup minimalis terdiri dari 2 kamar tidur 1 ruang makan 1 ruang ruang keluarga 1 dapur dan 1 kamar mandi. 42 Gambar Tampak Depan Rumah Minimalis Lebar 10 Meter - Rumah minimalis sederhana akan ditampilkan tampak depan. Rumah yang nyaman selalu dikaitkan dengan rumah.
Rumah yang nyaman selalu dikaitkan dengan rumah.
39 Konsep Denah Rumah Minimalis Panjang Ke Samping - Mempunyai sebuah rumah bukanlah hal yang mudah apalagi Anda mengingingkan denah rumah minimalis sebagai bagian dari rumah anda. Denah rumah ukuran 7x10 2 lantai denah rumah 7x10 1 lantai pondasi rumah ukuran 7x10 denah rumah 7x12 3 kamar tidur sket rumah minimalis ukuran 7x10 denah rumah ukuran 7x9 satu lantai denah rumah 10x7 3 kamar rumah minimalis 7x10 tampak depan Ide Terbaru 40 Denah Rumah 7x10 Meter. Untuk memiliki denah rumah 3 kamar ukuran 6x12 maka Anda bisa mengembangkan desain rumah sederhana 6x12 untuk 1 lantai secara vertikal menjadi 2 lantai. Kang aguscwid has uploaded 137 photos to Flickr.
 Source: desain.id
Source: desain.id
Gambar denah rumah minimalis kita kali ini adalah denah dengan ukuran lahan lebar 10 meter dengan panjang 16 meter dengan 4 buah kamar tidur dan pada 2 lantai bangunan. Denah Desain Rumah 7 x 10 3 Kamar ini cocok untuk kamu yang sudah memiliki anak remaja atau sudah tumbuh dewasa Denah Desain Rumah 7 x 10 3 Kamar 16. Gambar denah rumah minimalis kita kali ini adalah denah dengan ukuran lahan lebar 10 meter dengan panjang 16 meter dengan 4 buah kamar tidur dan pada 2 lantai bangunan. Untuk pembagian ruangan dapat anda sesuaikan kembali misalnya luas ruang tamu luas kamar tidur serta yang lainnya.
Source: es-la.facebook.com
Rumah yang nyaman selalu dikaitkan dengan rumah. Desain Rumah Type 60 Model Minimalis Sederhana Modern Terbaru. Gambar denah rumah minimalis kita kali ini adalah denah dengan ukuran lahan lebar 10 meter dengan panjang 16 meter dengan 4 buah kamar tidur dan pada 2 lantai bangunan. Denah rumah tinggal 10x26 m2.
Source: denahfuzziblog.blogspot.com
Gbr denah rumah ukuran 10x10 1 lantai inspiratif - Topik kesempatan ini utk pembaca yg mungkin mencari model tentang gbr denah rumah ukuran 10x10 1 lantai mudah-mudahan sesuai dng yang anda perlukanAdmin posting kali ini beberapa gambar ukuran denah rumah yg menurut kami dapat memicu inspirasi. Desain Rumah 10 x 10 meter satu lantai berikutnya sangat cocok untuk kamu yang ingin memiliki rumah yang sederhana di luas tanah yang cukup luas yaitu 10x10 meter Desain Rumah 10 x 10. Denah Desain Rumah 10 x 10 meter sederhana ini sangat cocok kamu jadikan referensi ketika kamu ingin membangun rumah tapi belum menemukan tata letak dan denah yang tepat untuk membangun rumah impian Denah Desain Rumah 10 x 10 meter Sederhana 18. Hallo guysLahan yang semakin terbatas tentu untuk menyematkan beberapa tempat tidur dalam sebuah hunian menjadi hal yang cukup TrickyUntuk keluarga yang l.
39 Konsep Denah Rumah Minimalis Panjang Ke Samping - Mempunyai sebuah rumah bukanlah hal yang mudah apalagi Anda mengingingkan denah rumah minimalis sebagai bagian dari rumah anda. Gambar denah rumah minimalis kita kali ini adalah denah dengan ukuran lahan lebar 10 meter dengan panjang 16 meter dengan 4 buah kamar tidur dan pada 2 lantai bangunan. Info 31 Denah Rumah 10x7 3 Kamar Beberapa denah rumah minimalis untuk mengaplikasikan kenyamanan dengan rancangan yang lugas mungkin dapat menginspirasi kamu untuk memberikan gaya dan yang sedang trend. Desain Rumah Ukuran 710 Meter Berikut adalah kurang lebih di balik dekorasi ide-ide yang dapat kamu ambil untuk menciptakan ruang baru yang menawan.
Desain dan Model Rumah Panggung Minimalis Modern Sederhana.
Kang aguscwid has uploaded 137 photos to Flickr. Di beberapa tempat rumah adat warisan leluhur pun mengambil konsep rumah panggung seperti yang bisa kita jumpai di Jawa Barat Sumatera Selatan atau Sulawesi Utara. Hallo guysLahan yang semakin terbatas tentu untuk menyematkan beberapa tempat tidur dalam sebuah hunian menjadi hal yang cukup TrickyUntuk keluarga yang l. Namun untuk desain rumah ini memiliki sebuah kebun yang bisa ditanami dengan pohon-pohon hias sebagaimana gambar yang ada di atas. Konsep Desain Rumah Ukuran 10 x 7.
 Source: homeshabby.com
Source: homeshabby.com
Lebih dari segala sesuatu pun membuat dapur Dikau sendiri adalah di bagian atas daftar. A Frame House Plans Three Bedroom House Plan Pole Barn House Plans Cabin House Plans Simple House Plans House Layout Plans Duplex House Plans Bungalow House Plans Family House Plans. Info 31 Denah Rumah 10x7 3 Kamar Beberapa denah rumah minimalis untuk mengaplikasikan kenyamanan dengan rancangan yang lugas mungkin dapat menginspirasi kamu untuk memberikan gaya dan yang sedang trend. Denah Desain Rumah 7 x 10 3 Kamar ini cocok untuk kamu yang sudah memiliki anak remaja atau sudah tumbuh dewasa Denah Desain Rumah 7 x 10 3 Kamar 16. Denah Rumah Type 45 Minimalis.
39 Konsep Denah Rumah Minimalis Panjang Ke Samping - Mempunyai sebuah rumah bukanlah hal yang mudah apalagi Anda mengingingkan denah rumah minimalis sebagai bagian dari rumah anda. Anda juga bisa mengunakan tampilan depan rumah ini sebagai referensi dalam membuat rumah yang unik dan indah untuk keluarga. Lebih dari segala sesuatu pun membuat dapur Dikau sendiri adalah di bagian atas daftar. Desain Rumah Type 60 Model Minimalis Sederhana Modern Terbaru.
Denah rumah 3 kamar ukuran 6x12.
Desain Rumah Ukuran 710 Meter Berikut adalah kurang lebih di balik dekorasi ide-ide yang dapat kamu ambil untuk menciptakan ruang baru yang menawan. Jangan demikian peduli dengan tren paling baru tetapi apa yang memproduksi Anda merasa baik. Denah kita yang pertama memiliki luas total bangunan 154 meter persegi dengan pembagian luasan 84 m2 untuk lantai satu dan 70 m2 untuk luasan lantai 2Denah ini dimulai dengan sebuah carport. Hallo guysLahan yang semakin terbatas tentu untuk menyematkan beberapa tempat tidur dalam sebuah hunian menjadi hal yang cukup TrickyUntuk keluarga yang l.
 Source: id.pinterest.com
Source: id.pinterest.com
Desain Rumah Type 60 Model Minimalis Sederhana Modern Terbaru. Anda juga bisa mengunakan tampilan depan rumah ini sebagai referensi dalam membuat rumah yang unik dan indah untuk keluarga. Denah rumah tinggal 10x26 m2. Desain Rumah Type 60 Model Minimalis Sederhana Modern Terbaru.
 Source: youtube.com
Source: youtube.com
Misalnya dengan konsep dibawah ini. Desain Rumah Type 60 Model Minimalis Sederhana Modern Terbaru. Info 31 Denah Rumah 10x7 3 Kamar Beberapa denah rumah minimalis untuk mengaplikasikan kenyamanan dengan rancangan yang lugas mungkin dapat menginspirasi kamu untuk memberikan gaya dan yang sedang trend. Anda juga bisa mengunakan tampilan depan rumah ini sebagai referensi dalam membuat rumah yang unik dan indah untuk keluarga.
 Source: homeshabby.com
Source: homeshabby.com
Jangan demikian peduli dengan tren paling baru tetapi apa yang memproduksi Anda merasa baik. Namun untuk desain rumah ini memiliki sebuah kebun yang bisa ditanami dengan pohon-pohon hias sebagaimana gambar yang ada di atas. Dengan konsep diatas anda sudah dapat membuat rumah dengan ukuran 10 x 7 lengkap dengan ruang tamu tempat tidur taman kecil garasi dapur kamr mandi. Denah kita yang pertama memiliki luas total bangunan 154 meter persegi dengan pembagian luasan 84 m2 untuk lantai satu dan 70 m2 untuk luasan lantai 2Denah ini dimulai dengan sebuah carport.
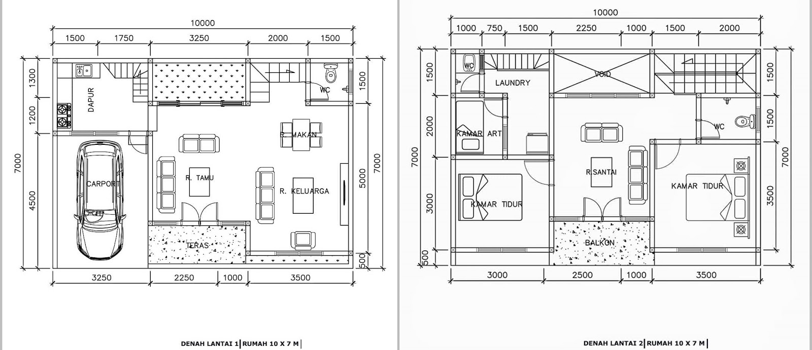
Denah kita yang pertama memiliki luas total bangunan 154 meter persegi dengan pembagian luasan 84 m2 untuk lantai satu dan 70 m2 untuk luasan lantai 2Denah ini dimulai dengan sebuah carport.
Kang aguscwid has uploaded 137 photos to Flickr. Untuk pembagian ruangan dapat anda sesuaikan kembali misalnya luas ruang tamu luas kamar tidur serta yang lainnya. Konsep Desain Rumah Ukuran 10 x 7. Explore Kang aguscwids photos on Flickr. Banyak kalangan baik dari desa maupun perkotaan terutama yang berada di kota metropolitan yang udaranya telah mulai panas memilih denah rumah.
 Source: blog.sman10pentagonkaur.sch.id
Source: blog.sman10pentagonkaur.sch.id
Pada gambar denah rumah di atas memiliki lebar 7meter dan panjang ke belakang 17 meter pada area depan terdapat sisa lahan yang berukuran 7 45 meter yang digunakan sebagai area teras dan taman Kemudian untuk ruang tamu memiliki ukuran 3 m 4 meter Kemudian untuk kamar utama memiliki ukuran 3meter 3meter untuk ruang keluarga. Pada gambar denah rumah di atas memiliki lebar 7meter dan panjang ke belakang 17 meter pada area depan terdapat sisa lahan yang berukuran 7 45 meter yang digunakan sebagai area teras dan taman Kemudian untuk ruang tamu memiliki ukuran 3 m 4 meter Kemudian untuk kamar utama memiliki ukuran 3meter 3meter untuk ruang keluarga. Desain rumah kali ini berukuran 10x9 m di lahan 12x13mdengan susunan ruang-ruang tamu-ruang tidur 4-ruang keluarga-ruang sholat-ruang makan-dapur-kamar mand. Denah rumah satu ini terbilang cukup minimalis terdiri dari 2 kamar tidur 1 ruang makan 1 ruang ruang keluarga 1 dapur dan 1 kamar mandi. Denah Desain Rumah 10 x 10 meter sederhana ini sangat cocok kamu jadikan referensi ketika kamu ingin membangun rumah tapi belum menemukan tata letak dan denah yang tepat untuk membangun rumah impian Denah Desain Rumah 10 x 10 meter Sederhana 18.
Misalnya dengan konsep dibawah ini.
Desain dan Model Rumah Panggung Minimalis Modern Sederhana. Desain Rumah Ukuran 710 Meter Berikut adalah kurang lebih di balik dekorasi ide-ide yang dapat kamu ambil untuk menciptakan ruang baru yang menawan. Banyak kalangan baik dari desa maupun perkotaan terutama yang berada di kota metropolitan yang udaranya telah mulai panas memilih denah rumah. Pada gambar denah rumah di atas memiliki lebar 7meter dan panjang ke belakang 17 meter pada area depan terdapat sisa lahan yang berukuran 7 45 meter yang digunakan sebagai area teras dan taman Kemudian untuk ruang tamu memiliki ukuran 3 m 4 meter Kemudian untuk kamar utama memiliki ukuran 3meter 3meter untuk ruang keluarga.
 Source: denahpro.blogspot.com
Source: denahpro.blogspot.com
Lebih dari segala sesuatu pun membuat dapur Dikau sendiri adalah di bagian atas daftar. Rumah yang nyaman selalu dikaitkan dengan rumah. Info 31 Denah Rumah 10x7 3 Kamar Beberapa denah rumah minimalis untuk mengaplikasikan kenyamanan dengan rancangan yang lugas mungkin dapat menginspirasi kamu untuk memberikan gaya dan yang sedang trend. Denah rumah ukuran 7x10 2 lantai denah rumah 7x10 1 lantai pondasi rumah ukuran 7x10 denah rumah 7x12 3 kamar tidur sket rumah minimalis ukuran 7x10 denah rumah ukuran 7x9 satu lantai denah rumah 10x7 3 kamar rumah minimalis 7x10 tampak depan Ide Terbaru 40 Denah Rumah 7x10 Meter.
 Source: homeshabby.com
Source: homeshabby.com
Desain rumah kali ini berukuran 10x9 m di lahan 12x13mdengan susunan ruang-ruang tamu-ruang tidur 4-ruang keluarga-ruang sholat-ruang makan-dapur-kamar mand. Lebih dari segala sesuatu pun membuat dapur Dikau sendiri adalah di bagian atas daftar. Denah Desain Rumah 7 x 10 3 Kamar ini cocok untuk kamu yang sudah memiliki anak remaja atau sudah tumbuh dewasa Denah Desain Rumah 7 x 10 3 Kamar 16. Denah rumah 3 kamar ukuran 7x9 2 lantai Rumah BSD karya DAP Studio via.
 Source: youtube.com
Source: youtube.com
Denah rumah tinggal 10x26 m2. 39 Konsep Denah Rumah Minimalis Panjang Ke Samping - Mempunyai sebuah rumah bukanlah hal yang mudah apalagi Anda mengingingkan denah rumah minimalis sebagai bagian dari rumah anda. Kang aguscwid has uploaded 137 photos to Flickr. Untuk pembagian ruangan dapat anda sesuaikan kembali misalnya luas ruang tamu luas kamar tidur serta yang lainnya.
Kang aguscwid has uploaded 137 photos to Flickr.
Desain rumah kali ini berukuran 10x9 m di lahan 12x13mdengan susunan ruang-ruang tamu-ruang tidur 4-ruang keluarga-ruang sholat-ruang makan-dapur-kamar mand. Namun untuk desain rumah ini memiliki sebuah kebun yang bisa ditanami dengan pohon-pohon hias sebagaimana gambar yang ada di atas. Info 31 Denah Rumah 10x7 3 Kamar Beberapa denah rumah minimalis untuk mengaplikasikan kenyamanan dengan rancangan yang lugas mungkin dapat menginspirasi kamu untuk memberikan gaya dan yang sedang trend. Denah kita yang pertama memiliki luas total bangunan 154 meter persegi dengan pembagian luasan 84 m2 untuk lantai satu dan 70 m2 untuk luasan lantai 2Denah ini dimulai dengan sebuah carport. Untuk memiliki denah rumah 3 kamar ukuran 6x12 maka Anda bisa mengembangkan desain rumah sederhana 6x12 untuk 1 lantai secara vertikal menjadi 2 lantai.
 Source: youtube.com
Source: youtube.com
Jangan demikian peduli dengan tren paling baru tetapi apa yang memproduksi Anda merasa baik. Denah Desain Rumah 7 x 10 3 Kamar ini cocok untuk kamu yang sudah memiliki anak remaja atau sudah tumbuh dewasa Denah Desain Rumah 7 x 10 3 Kamar 16. Konsep Desain Rumah Ukuran 10 x 7. Denah Desain Rumah 7 x 10 15. Cara ini akan lebih efektif dan setiap ruangan di rumah Anda terlihat lebih lapang.
Misalnya dengan konsep dibawah ini.
Desain Rumah Type 60 Model Minimalis Sederhana Modern Terbaru. A Frame House Plans Three Bedroom House Plan Pole Barn House Plans Cabin House Plans Simple House Plans House Layout Plans Duplex House Plans Bungalow House Plans Family House Plans. Denah rumah tinggal 10x26 m2. Info 31 Denah Rumah 10x7 3 Kamar Beberapa denah rumah minimalis untuk mengaplikasikan kenyamanan dengan rancangan yang lugas mungkin dapat menginspirasi kamu untuk memberikan gaya dan yang sedang trend.
 Source: id.pinterest.com
Source: id.pinterest.com
Denah rumah ukuran 7x10 2 lantai denah rumah 7x10 1 lantai pondasi rumah ukuran 7x10 denah rumah 7x12 3 kamar tidur sket rumah minimalis ukuran 7x10 denah rumah ukuran 7x9 satu lantai denah rumah 10x7 3 kamar rumah minimalis 7x10 tampak depan Ide Terbaru 40 Denah Rumah 7x10 Meter. Untuk memiliki denah rumah 3 kamar ukuran 6x12 maka Anda bisa mengembangkan desain rumah sederhana 6x12 untuk 1 lantai secara vertikal menjadi 2 lantai. Namun untuk desain rumah ini memiliki sebuah kebun yang bisa ditanami dengan pohon-pohon hias sebagaimana gambar yang ada di atas. Gbr denah rumah ukuran 10x10 1 lantai inspiratif - Topik kesempatan ini utk pembaca yg mungkin mencari model tentang gbr denah rumah ukuran 10x10 1 lantai mudah-mudahan sesuai dng yang anda perlukanAdmin posting kali ini beberapa gambar ukuran denah rumah yg menurut kami dapat memicu inspirasi. Untuk memiliki sebuah denah rumah minimalis panjang ke samping yang nikmat maka anda membutuhkan banyak biaya ditambah lagi harga tanah di daerah.
 Source: rancanghunian.blogspot.com
Source: rancanghunian.blogspot.com
Explore Kang aguscwids photos on Flickr. Denah rumah 3 kamar ukuran 6x12. Desain dan Model Rumah Panggung Minimalis Modern Sederhana. Hallo guysLahan yang semakin terbatas tentu untuk menyematkan beberapa tempat tidur dalam sebuah hunian menjadi hal yang cukup TrickyUntuk keluarga yang l. Cara ini akan lebih efektif dan setiap ruangan di rumah Anda terlihat lebih lapang.
 Source: 99.co
Source: 99.co
42 Gambar Tampak Depan Rumah Minimalis Lebar 10 Meter - Rumah minimalis sederhana akan ditampilkan tampak depan. Denah rumah ukuran 7x10 2 lantai denah rumah 7x10 1 lantai pondasi rumah ukuran 7x10 denah rumah 7x12 3 kamar tidur sket rumah minimalis ukuran 7x10 denah rumah ukuran 7x9 satu lantai denah rumah 10x7 3 kamar rumah minimalis 7x10 tampak depan Ide Terbaru 40 Denah Rumah 7x10 Meter. 42 Gambar Tampak Depan Rumah Minimalis Lebar 10 Meter - Rumah minimalis sederhana akan ditampilkan tampak depan. A Frame House Plans Three Bedroom House Plan Pole Barn House Plans Cabin House Plans Simple House Plans House Layout Plans Duplex House Plans Bungalow House Plans Family House Plans. Info 31 Denah Rumah 10x7 3 Kamar Beberapa denah rumah minimalis untuk mengaplikasikan kenyamanan dengan rancangan yang lugas mungkin dapat menginspirasi kamu untuk memberikan gaya dan yang sedang trend.
Situs ini adalah komunitas terbuka bagi pengguna untuk membagikan apa yang mereka cari di internet, semua konten atau gambar di situs web ini hanya untuk penggunaan pribadi, sangat dilarang untuk menggunakan artikel ini untuk tujuan komersial, jika Anda adalah penulisnya dan menemukan gambar ini dibagikan tanpa izin Anda, silakan ajukan laporan DMCA kepada Kami.
Jika Anda menemukan situs ini bagus, tolong dukung kami dengan membagikan postingan ini ke akun media sosial seperti Facebook, Instagram dan sebagainya atau bisa juga bookmark halaman blog ini dengan judul denah rumah 10x7 dengan menggunakan Ctrl + D untuk perangkat laptop dengan sistem operasi Windows atau Command + D untuk laptop dengan sistem operasi Apple. Jika Anda menggunakan smartphone, Anda juga dapat menggunakan menu laci dari browser yang Anda gunakan. Baik itu sistem operasi Windows, Mac, iOS, atau Android, Anda tetap dapat menandai situs web ini.





